連接件模型
Connector Model
Connector Model
聯系APAS / Contact us
- 地址:天津市西青經濟技術開發區賽達國際工業城A3-2.
- 郵箱:lxc@apas.com.cn
- 電話:022-87920088
- 傳真:請聯系網絡管理員
- 郵編:300385
- 咨詢熱線:13702119190(24小時服務熱線)
連接件模型
/ Connector Model

45系列鋁型材大型鑄鋁角件3d模型
產品描述 / Name
45系列鋁型材9090大角件鋁角碼主要用于高強度鋁型材框架的固定支承,是較為常用的鋁型材連接角碼,可以下載角碼SLDWORKS三維模型進行框架的設計組裝;
022-87920099
可以根據需求進行設計加工,提供上門安裝服務;可以根據特殊需求進行鋁型材開模定制。
* 免費提供工業鋁型材選型手冊 →點擊咨詢
內容來源:http://m.postbar.cn 作者:武將 發布日期:2020年03月27日 11時01分 閱讀次數:3117 次
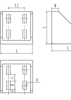
| 45系列鋁型材大型鑄鋁角件適用于槽10規格雙槽鋁型材(4590、9090等)之間的連接組裝;主要用于受強力或振動的型材與型材之間連接點的固定與支撐,裝配時所用T型螺栓及法蘭螺母需要另行搭配; |
![]() ![]()
|
| 45系列大型鑄鋁角件兩側各有四個安裝孔,緊固強度及支撐能力更高,主要適用于大型、高強度鋁型材框架的組裝連接,屬于較為常用的鋁型材快速連接配件之一; |
|
槽型規格
|
L(mm)
|
L1(mm)
|
W(mm)
|
A(mm)
|
B(mm)
|
C(mm)
|
D(mm)
|
材質
|
訂貨編號
|
|
槽10
|
86.2
|
45
|
11
|
8
|
22.5
|
17.2
|
φ8.5
|
鑄鋁
|
CE-SB9090-10
|
聯系APAS/ Contact us
天津艾普斯工業鋁型材股份有限公司
聯系電話:022-87920088
企業傳真:(避免惡意廣告)請聯系該企業網絡管理員
服務熱線:13702119190 (24小時服務熱線)
Q Q:534973906
企業郵箱: lxc@apas.com.cn
企業地址:天津市西青經濟技術開發區賽達國際工業城A3-2
聯系電話:022-87920088
企業傳真:(避免惡意廣告)請聯系該企業網絡管理員
服務熱線:13702119190 (24小時服務熱線)
Q Q:534973906
企業郵箱: lxc@apas.com.cn
企業地址:天津市西青經濟技術開發區賽達國際工業城A3-2
采購意向留言:* 為必填






.jpg)








QQ咨詢
電話聯系
聯系電話

在線留言
樣冊下載
